Bouwnummer 5

Bel-etage

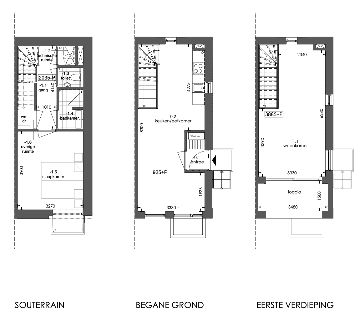
Via de buitentrap kom je binnen op de bel-etage. In de entree bevindt zich de meterkast en ruimte voor jassen. De open keuken en eetkamer liggen aan de voorzijde, met grote ramen die zorgen voor veel lichtinval en een fraai zicht op de straat.
De keuken wordt niet geplaatst, maar de aansluitingen voor water en elektra zijn voorbereid. In overleg kan er een keuken vóór oplevering worden geplaatst. Er is ruim voldoende plek voor een grote eettafel.

Souterrain

Op de verdieping eronder bevinden zich het separate toilet, de technische ruimte (met witgoedaansluiting en ventilatieunit), en de badkamer met inloopdouche en wastafel. Onder de trap is extra bergruimte. Aan de voorzijde ligt een ruime slaapkamer met daglicht, geschikt voor een tweepersoonsbed en kastruimte.

Eerste verdieping

Bovenin bevindt zich de lichte en ruime woonkamer met toegang tot het balkon. Deze ruimte is flexibel in te delen en biedt eventueel mogelijkheid tot het creëren van een tweede (afsluitbare) slaapkamer of werkkamer.

Buitenruimte

Op de bovenste verdieping beschik je over een eigen balkon, met uitzicht en zon. Aan de voorzijde is een kleine tuinstrook — ideaal voor een zitje of beplanting.

Berging

Elke woning beschikt over een externe berging met eigen elektrameter. Praktisch voor fietsen en opslag.


Afwerking en oplevering

  • Keuken: niet geplaatst, wel met voorbereide aansluitingen
  • Toilet en badkamer: compleet afgewerkt
  • Vloeren: casco (zonder afwerkvloer)
  • Wanden: met filmlaag, afwerkgroep 3 (DIN 55668)
  • Plafonds: afgewerkt met spackspuitwerk

Voor de volledige afwerking verwijzen we naar de technische omschrijving.

Details

Type woning: Hoekwoning

Vraagprijs: € 352.000,- v.o.n.

Woonoppervlakte: 75 m²
Gebouwgebonden buitenruimte: 4,2 m²
Externe bergruimte: 5,7 m²
Perceel: 74 m² (nader in te meten door het kadaster)
Parkeerplaats: ja
Energielabel A+++
Verwarming: Airco (verwarmen en koelen)
Zonnepanelen: 6 zonnepanelen per woning
Gasloos: Ja

Terug naar project